2026年04月24日
半田町売事務所
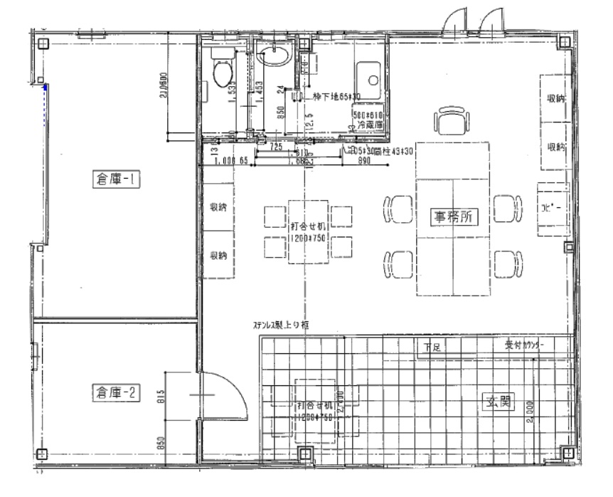
半田町 売事務所
半田町 売事務所 2,500万円
・90坪の南西角地の売事務所(倉庫付)
・専用住宅への用途変更可能!
・駐車場4台可能。
| 所在 | 浜松市中央区半田町234-1 |
|---|---|
| 面積 | 299.00㎡(90.73坪) |
| 地目 | 宅地 |
| 土地権利 | 所有権 |
| 建ぺい率 | 70% |
| 容積率 | 200% |
| 接道 | 南側半田12号線幅員約4.45㍍公道に約14.95㍍接する 西側半田7号線幅員約4.43㍍公道に約15.42㍍接する |
| 現況 | 空 |
| 引渡 | 相談 |
| 設備 | 上水道・プロパンガス・中部電力 |
| 備考 |
主要採光面:南向き
「専用住宅以外の許可建築物の許可者移転(承継)」」 承継人の基準 ・承継する用途によ係る事業を原則市内で1年以上行っているもの。 ・業種に対応した資格を有していること。 ・法人申請の場合は店長に就く者を明らかにすること。 ・自己の業務用として使用する事。(賃貸不可) ・許可(限定)宅地としての承継となる。 |
.jpg)
物件の詳細は コチラ をご覧ください!